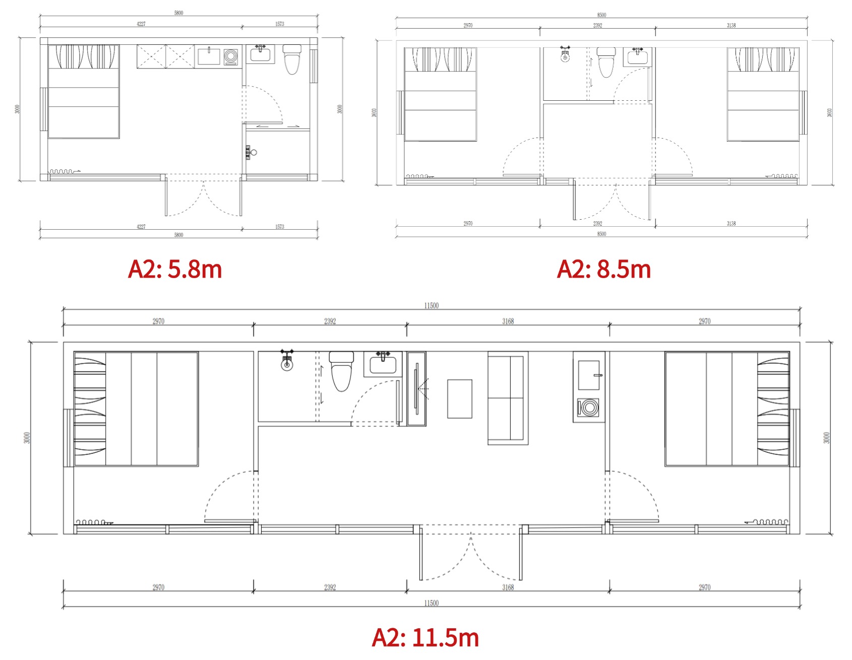
Moxihome Apple Cabin Model A2
Beds: 2 Bath:1
Area: 34.5m² LxWxH: 11.5m x 3m x 3m
Standard configuration:
- Fine finishing, shower room with artificial stone finish and partition, toilet, sink, smart mirror, sink cabinet, curtain mechanism, thermal insulation, waterproofing, wind protection, smart lock, internal and external lighting, electricity wiring, sewerage, water treatment.
- sofa, coffee table, TV cabinet, double bed, bedside table, refrigerator, TV, kitchen (lower and upper cabinets, sink, artificial stone countertop), hob.
Product Details
1. Details
- Main Struction
Main frame(Galvanized steel frame structure), Shell (aluminum plate), Thermal insulation(polyurethane, extruded panel, Rock wool), Glass curtain wall (8+12A+8 Hollow LOW-E coated tempered glass)
- Interior:
Aluminum exterior panel ceiling &wall, Stone plastic composite floor, Whole house lighting system, Whole house plumbing&electrical system, Entryway cabinet, Curtain track (without curtain)
- Utilities
Communal cable, less insulated PVC piping, communal water and pressurized drainage piping, three-hole socket, switch panel/USB panel
- Baths(optional)
Aluminum alloy glass door, Premium brand showerhead, Sink Washbasin, bathroom mirror, bathroom floor drain, Faucet, toilet, Bathroom heater, stainless steel hanger.
- Kitchen (optional)
Induction Cooker, Range Hood, Cabinet, Bar counter, Sink.
- Appliance(optional)
Air conditioner, Electric water heater, refrigerator, washing machine with drying, 4K Projector, Floor heating, Electric curtain
- Furniture(optional)
Sofa, Bed, Coffee table, Lounge Chair
2. Delivery
Delivery:
Delivery place: factory located in Foshan, China, the nearest port of delivery is Nansha port in Guangzhou, or Shekou port in Shenzhen.
Delivery method: there are two delivery methods for Apple Cabin A2, the whole hosue and disassembled modular houses. For the whole house delivery, the house will be shipped in 40 flat rack container due to the wide width of the house up to 3m, so the shipping costs are relatively high and suitable for only 1-2 houses. For the disassembled modular houses delivery, the house will be shipped in 40 HQ,which saves shipping cost and is suitable for purchasing large quantity of houses.
Installation: Our services do not include installing the house. For the whole house delivery, installation is very simple, just need the crane to be placed on the base prepared in advance. For the disassembled modular houses delivery, we will give you the necessary assembly drawings and video tutorials to help you install it locally, of course you need to have some construction experience.
If you buy a lot of house for your project, we can also arrange for a Volferda engineer to go to the project site to guide the assembly and installation, or a local agent to help you with the installation. At present we have agents in Europe, the United States, the Middle East, Australia and other regions. There is an extra charge for this service.
*we can also support DDP(Door to Door), if you are an individual customer with no experience of importing from China, but you will need to contact our sales manager for detailes.
Delivery time:
Production: 45 daysDelivery time: 20-35 days
Therefore, we can deliver to any country in the world.
*Time may vary depending on holidays in China and the destination country and the complexity of the route to the delivery site.
3. Payment
Payment methods
T/T payment
Payment procedure
50% deposit before producing
50% balance befor delivery
4. floor plans
Send Inquiry
Can't find the specific information you’re looking for? Have a question ? Us















